- Woonoppervlakte
- Circa 56 m²
- Inhoud
- Circa 214 m³
- Bouwjaar
- Gebouwd in 1934
- Aantal kamers
- 3 kamers (2 slaapkamers)
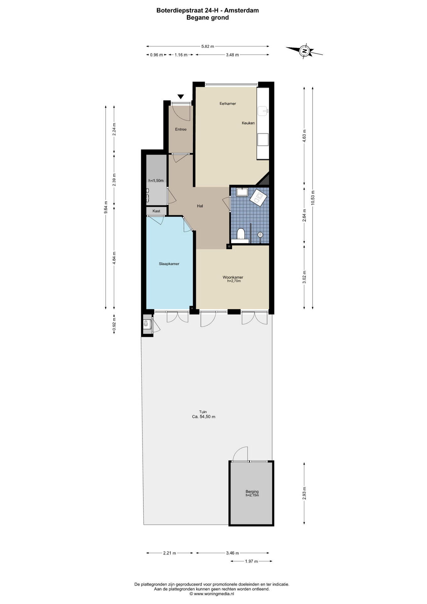
In de geliefde Rivierenbuurt bieden wij deze charmante benedenwoning (ca. 56 m²) met een royale tuin van ca. 54 m² op het westen én een vrijstaande berging aan. Een fijne combinatie van licht, ruimte en rust op een centrale locatie in Amsterdam-Zuid.
-See English translation below-
Indeling
Via de eigen entree kom je binnen in de hal, die toegang geeft tot alle vertrekken. Aan de voorzijde ligt de ruime woonkeuken met eethoek. Dankzij de grote raampartijen geniet je hier van heerlijk veel daglicht. De keuken is voorzien van diverse inbouwapparatuur en biedt voldoende werk- en opbergruimte.
Aan de achterzijde bevinden zich twee kamers, waarvan er momenteel één als woonkamer wordt gebruikt en de andere als slaapkamer. Beide kamers geven toegang tot de diepe tuin. Deze zonnige tuin, gelegen op het westen, is ingericht met groen en een terras waar je tot in de avond van de zon kunt genieten. Achterin staat een vrijstaande berging met elektra, ideaal voor fietsen en opslag.
De badkamer is centraal in de woning gelegen en modern afgewerkt. Hier vind je een inloopdouche met regendouche, wastafelmeubel en een Geberit aquaclean toilet. Door de luxe dimbare inbouwspots heeft de ruimte een aangename sfeer.
De woning is strak en verzorgd afgewerkt, voorzien van een fraaie laminaatvloer en dubbele beglazing, waardoor het appartement direct te betrekken is.
Ben je op zoek naar een sfeervol benedenhuis met zonnige tuin, centraal in Amsterdam-Zuid? Maak dan snel een afspraak voor een bezichtiging!
Omgeving
De Boterdiepstraat is een rustige straat in de populaire Rivierenbuurt, vlak bij de President Kennedylaan. Op loopafstand vind je de Rijnstraat met een breed aanbod aan winkels, supermarkten, cafés en restaurants. Voor ontspanning wandel je zo naar het Martin Luther Kingpark of de Amstel. Ook het Amstelstation ligt vlakbij, evenals diverse tram- en busverbindingen. Met de auto rijd je binnen enkele minuten de A10 of A2 op.
Het appartement is gunstig gelegen t.o.v. het openbaar vervoer. Zo is het Amstelstation zeer dichtbij, net als diverse tram- en busverbindingen. Met de auto ben je binnen enkele minuten op de A10 of A2. Ook het Martin Luther Kingpark en de Amstel zijn op wandelafstand bereikbaar.
Parkeren kan hier middels een bewonersvergunning, voor meer informatie over kosten en mogelijke wachttijden adviseren wij u de website van de Gemeente Amsterdam te raadplegen (www.amsterdam.nl).
VvE
- De maandelijkse VvE-bijdrage bedraagt €115,-- per maand.
- Administratie wordt professioneel gevoerd door Kantoor Kwekkeboom
- VvE bestaat uit 3 leden
Erfpacht
Het pand waar het appartement deel van uitmaakt is op erfpachtgrond (Gemeente Amsterdam) gelegen. Algemene Bepalingen 2016 zijn van toepassing. De jaarlijkse canon is vastgeklikt op € 1.097,25 tot en met 15 februari 2059. Hierna is deze eeuwigdurend met 1-jaarlijkse indexatie.
Bijzonderheden
• Woonoppervlakte ca. 56 m² (conform NEN 2580)
• Bouwjaar ca. 1934
• Verwarming en warm water via cv-ketel
• Geïsoleerd d.m.v. dubbele beglazing
• Tuin ca. 55 m² op het westen met berging voorzien van elektra
• Oplevering in overleg
Meetinstructie
Het verkochte is gemeten met gebruikmaking van de Meetinstructie, welke is gebaseerd op de normen zoals vastgelegd in NEN 2580. De Meetinstructie is bedoeld om een meer eenduidige manier van meten toe te passen voor het geven van een indicatie van de gebruiksoppervlakte. De Meetinstructie sluit verschillen in meetuitkomsten niet volledig uit door bijvoorbeeld interpretatieverschillen, afrondingen en beperkingen bij het uitvoeren van een meting. De woning is gemeten door een betrouwbaar professioneel bedrijf en koper vrijwaart de medewerkers van Voorma & Millenaar makelaars o.g. en de verkoper voor eventuele afwijkingen in de opgegeven maten. Koper verklaart in de gelegenheid te zijn gesteld om de het verkochte zelf te (laten) meten conform NEN 2580.
----------------------------------------------------------------------------------------------------------------------------------------------
Bright and atmospheric ground floor flat with sunny garden in the Rivierenbuurt neighbourhood!
In the popular Rivierenbuurt neighbourhood, we are offering this charming ground floor flat (approx. 56 m²) with a spacious west-facing garden of approx. 54 m² and a detached storage shed. A wonderful combination of light, space and tranquillity in a central location in Amsterdam-Zuid.
Layout
The private entrance opens onto the hall, which provides access to all rooms. At the front is the spacious kitchen with dining area. Thanks to the large windows, you can enjoy plenty of natural light here. The kitchen is equipped with various built-in appliances and offers ample work and storage space.
At the rear are two rooms, one of which is currently used as a living room and the other as a bedroom. Both rooms give access to the deep garden. This sunny garden, facing west, is landscaped with greenery and a terrace where you can enjoy the sun until the evening. At the back is a detached storage room with electricity, ideal for bicycles and storage.
The bathroom is centrally located in the house and has a modern finish. Here you will find a walk-in shower with rain shower, washbasin and a Geberit aquaclean toilet. The luxurious dimmable recessed spotlights give the room a pleasant atmosphere.
The property has a sleek and neat finish, with attractive laminate flooring and double glazing, making the flat ready to move into immediately.
Are you looking for an attractive ground floor flat with a sunny garden, centrally located in Amsterdam-Zuid? Then make an appointment for a viewing soon!
Surroundings
Boterdiepstraat is a quiet street in the popular Rivierenbuurt neighbourhood, close to President Kennedylaan. Within walking distance, you will find Rijnstraat with a wide range of shops, supermarkets, cafés and restaurants. For relaxation, you can walk to Martin Luther Kingpark or the Amstel. Amstel station is also nearby, as are various tram and bus connections. By car, you can reach the A10 or A2 motorways within minutes.
The flat is conveniently located for public transport. Amstel Station is very close by, as are various tram and bus connections. By car, you can reach the A10 or A2 motorways within minutes. Martin Luther King Park and the Amstel River are also within walking distance.
Parking is available with a resident's permit. For more information about costs and possible waiting times, we advise you to consult the website of the Municipality of Amsterdam (www.amsterdam.nl).
Homeowners' Association
- The monthly Homeowners' Association contribution is €115 per month.
- Administration is professionally managed by Kantoor Kwekkeboom
- The owners' association consists of 3 members
Leasehold
The building in which the flat is located is on leasehold land (Municipality of Amsterdam). The General Provisions 2016 apply. The annual ground rent is fixed at €1,097.25 until 15 February 2059. After this date, it will be perpetual with annual indexation.
Details
• Living area approx. 56 m² (in accordance with NEN 2580)
• Year of construction approx. 1934
• Heating and hot water via central heating boiler
• Insulated with double glazing
• Garden approx. 55 m² facing west with storage shed equipped with electricity
• Delivery in consultation
Measurement instructions
The property sold has been measured using the Measurement Instructions, which are based on the standards laid down in NEN 2580. The Measurement Instructions are intended to apply a more uniform method of measurement to give an indication of the usable area. The Measurement Instructions do not completely rule out differences in measurement results due to, for example, differences in interpretation, rounding off and limitations when performing a measurement. The property has been measured by a reliable professional company and the buyer indemnifies the employees of Voorma & Millenaar estate agents and the seller for any deviations in the specified measurements. The buyer declares that they have been given the opportunity to measure the property themselves or have it measured in accordance with NEN 2580.
Overdracht
- Vraagprijs
- € 525.000 k.k.
- Status
- Verkocht
- Aanvaarding
- In overleg
- Bijdrage VvE
- € 115 p/m
Bouw
- Object type
- Benedenwoning, appartement
- Soort bouw
- Bestaande bouw
- Bouwjaar
- 1934
- Soort dak
- Zadeldak
Oppervlakte en inhoud
- Woonoppervlakte
- 56 m²
- Inhoud
- 214 m³
- Externe bergruimte
- 6 m²
Indeling
- Aantal kamers
- 3 kamers (2 slaapkamers)
- Aantal badkamers
- 1 badkamer
- Badkamervoorzieningen
- Toilet, wastafelmeubel, inloopdouche, wasmachineaansluiting
- Aantal woonlagen
- 1 woonlaag
- Voorzieningen
- Tv-kabel
Energie
- Energielabel
- D
- Energielabel registratie
- 17-09-2025
- Isolatie
- Dubbel glas
- Verwarming
- Cv-ketel
- Warm water
- Cv-ketel
- Cv ketel
- Combiketel gas gestookt (eigendom)
Buitenruimte
- Ligging
- Aan rustige weg, in woonwijk
- Tuin
- Achtertuin
- Afmetingen achtertuin
- 57 m² (9.5 meter diep en 6 meter breed)
- ligging tuin
- Gelegen op het westen en
Bergruimte
- Schuur / berging
- Vrijstaande houten berging
- Voorzieningen
- Voorzien van elektra
Garage
- Soort garage
- Geen garage
Parkeergelegenheid
- Soort parkeergelegenheid
- Betaald parkeren, parkeervergunningen
VvE checklist
- Inschrijving KvK
- Ja
- Jaarlijkse vergadering
- Ja
- Periodieke bijdrage
- Ja, € 115 p/m
- Reservefonds aanwezig
- Ja
- Opstalverzekering
- Ja
Energieverbruik in Amsterdam
Energielabel deze woning
Energielabel D
Publicatie energielabel: 17-09-2025
Stroomverbruik per jaar
(Gemiddelde appartement in Amsterdam)
Gasverbruik per jaar
(Gemiddelde appartement in Amsterdam)
* Cijfers zijn afkomstig van het CBS en bedoeld als indicatie en kunnen verschillen voor deze woning
Indicatie hypotheeklasten
Eigen inleg:
Spaargeld / overwaarde
Rente:
Laagste 10-jaars rente
Laagste 10-jaars rente
2,78% - Centraal Beheer - NHG
3,04% - Centraal Beheer - 80%
Laagste 20-jaars rente
3,29% - Centraal Beheer - NHG
3,52% - Centraal Beheer - 80%
Laagste 30-jaars rente
3,41% - Centraal Beheer - NHG
3,7% - Argenta - 80%
Hypotheek:
Bruto maandlasten: € 0 p/m
Netto maandlasten: € 0 p/m
Hoe berekenen we dit?
Het rentepercentage is gebaseerd op de laagste 10 jaars vaste rente voor één hypotheekdeel. De vermelde rente (3.04% zonder NHG) is gecontroleerd op 27-04-2026. Deze berekening is gebaseerd op een annuïteitenhypotheek die volledig wordt afgelost, waarbij de maandlasten gedurende de gehele looptijd gelijk blijven. De werkelijke rente en netto maandlasten kunnen variëren, afhankelijk van uw persoonlijke situatie en de hypotheekverstrekker. Raadpleeg een financieel adviseur voor een nauwkeurige berekening en advies. Aan deze berekening kunnen geen rechten worden ontleend; het dient enkel als indicatie.
Documentatie
Kadastrale kaart
Leefomgeving
Plattegronden PDF
BAG uittreksel
Brochure
Bezoek onze website
Bezichtiging
Bod uitbrengen
Waardebepaling
Zoekopdracht
Alles downloaden
Zonnegrenzen bekijken
Op de kaart
Inwoners in Amsterdam
Cijfers voor postcodegebied 1079
- Totaal aantal inwoners
- 14680 inwoners
- Mannen
- 47%
- Vrouwen
- 53%
Inwoners in Amsterdam
Cijfers voor postcodegebied 1079
- tot 15 jaar
- 11%
- 15 tot 25 jaar
- 10%
- 25 tot 35 jaar
- 42%
- 45 tot 65 jaar
- 21%
- 65 en ouder
- 15%
Huishoudens in Amsterdam
Cijfers voor postcodegebied 1079
- Eenpersoons zonder kinderen
- 59%
- Meerpersoons zonder kinderen
- 22%
- Huishoudens zonder kinderen
- 81%
Huishoudens in Amsterdam
Cijfers voor postcodegebied 1079
- Huishoudens met één kind
- 7%
- Huishoudens met meerdere kinderen
- 11%
- Huishoudens met kinderen
- 18%
Woningen in Amsterdam
Cijfers voor postcodegebied 1079
- Woningen voor 1945
- 80%
- Woningen tussen 1945 en 1965
- 9%
- Woningen tussen 1965 en 1975
- 1%
- Woningen tussen 1975 en 1985
- 1%
- Woningen tussen 1985 en 1995
- 1%
Woningen in Amsterdam
Cijfers voor postcodegebied 1079
- Woningen tussen 1995 en 2005
- 3%
- Woningen tussen 2005 en 2015
- 2%
- Woningen na 2015
- 3%
- Huurwoningen
- 80%
- Koopwoningen
- 20%
Overige in Amsterdam
Cijfers voor postcodegebied 1079
- Gemiddelde WOZ waarde
- € 442.000,-
- Personen onder de 65 met uitkering
- 10%
Overige in Amsterdam
Cijfers voor postcodegebied 1079
- Adressen per km²
- 6042
- Stedelijkheid (schaal 1 op 5)
- 100%
Korte feiten over Amsterdam
Amsterdam is de hoofdstad van Nederland. De stad, in het Amsterdams ook Mokum genoemd (afkomstig uit het Jiddisch), ligt in de provincie Noord-Holland, aan het IJ, het Noordzeekanaal en de monding van de Amstel. De stad ligt in de gelijknamige gemeente Amsterdam en heeft 873.338 inwoners (1 januari 2021), Groot-Amsterdam telt 1.459.402 inwoners.
Voorma & Millenaar makelaars
Indien u vragen heeft of u wilt een bezichtiging inplannen, dan kunt u gebruik maken van het formulier hiernaast. Er zal daarna op korte termijn contact met u worden opgenomen.
Amsterdamseweg 176
1182 HL, Amstelveen
020 - 641 8694 amsterdam@voormamillenaar.nl www.voormamillenaar.nlContact opnemen
Wie is Voorma & Millenaar?
Voorma & Millenaar makelaars, opgericht in 1966, is al geruime tijd een vertrouwde naam in de Amstelveense woningmarkt. Ons toegankelijke kantoor is gevestigd aan de Amsterdamseweg in Amstelveen en wordt ondersteund door een enthousiast en proactief team dat altijd voor u klaarstaat.
Onze expertise ligt in het adviseren en bemiddelen op de Amstelveense woningmarkt, evenals in de omliggende gemeenten. Bij Voorma & Millenaar staat het leveren van uitstekende service centraal, waarbij we de belangen van onze klanten vooropstellen.
Ons hele team, gevestigd aan de Amsterdamseweg, staat voor u klaar! Het bestaat uit gedreven professionals die alles op alles zetten om de beste resultaten te behalen. Dankzij deze toewijding onderscheiden we ons al jaren met ongeëvenaarde resultaten en service.
Nieuwste reviews
-
Thoornpolder 26
Ik heb Celine leren kennen als een servicegerichte en toegankelijke makelaar die goed inzicht heeft van de lokale huizenmarkt.
-
Sint Janskruidlaan 104
Ik ben top geholpen bij de verkoop van mijn appartement!! Echt een Aanrader deze makelaar want ze hebben voor mooie foto’s gezorgd, in video en hielde mij van elke bezichtiging op...
-
Chantal Berken
Wij kijken met een heel goed gevoel terug op de verkoop van onze woning via Voorma & Millenaar Makelaars, en in het bijzonder de begeleiding van Jill Loffeld. Vanaf het eerste mome...